Hôtel Garagum

Description

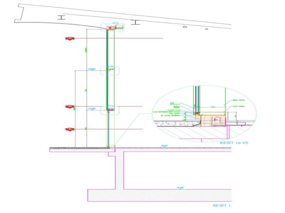
Nous avons effectué des calculs statiques pour la façade de l'hôtel GARAGUM à Ashgabat, au Turkménistan.

Les hauteurs et les ouvertures les plus défavorables de la façade ont été sélectionnées pour l'analyse type. Tous les profilés structuraux en aluminium et en acier se sont avérés conformes aux contrôles des contraintes et des déplacements. Les fixations à la structure principale ont également été examinées et les contraintes maximales ont été contrôlées.

Details

  • Category:
  • Emplacement : Achgabat / Turkménistan
  • Maître d’ouvrage : GFS Construction
  • Année : 2020
  • Share: