Emaar Square

Açıklama

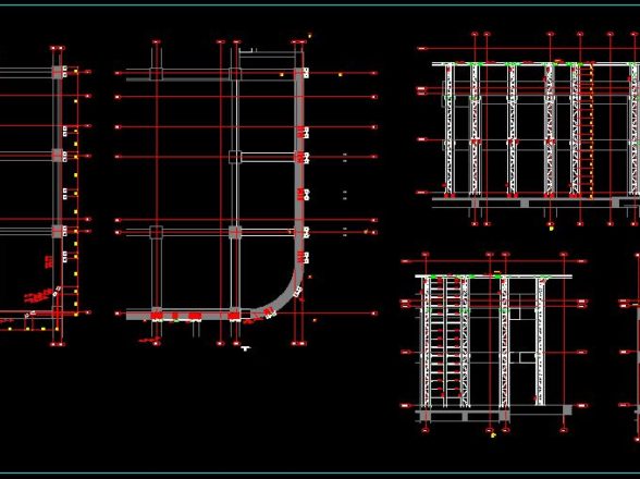
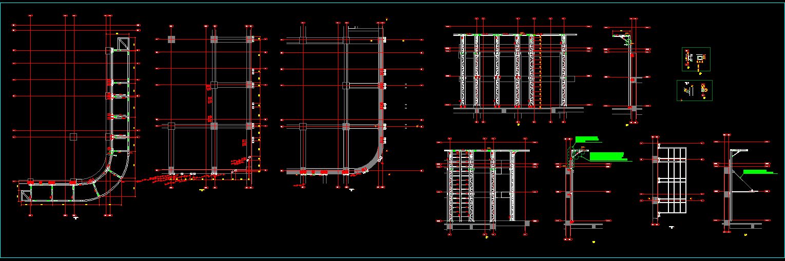
Emaar Square Podyum alanındaki cephe elamanlarının tasarımlarını gerçekleştirdik.

Detay

  • Kategori :
  • Şehir : İstanbul / Türkiye
  • Proje Sahibi : TAV-SERA / FİBROBETON
  • Paylaş :